
PROJELER
Gemi Mühendisliği ve Yat Tasarımı Akademisi
Mezuniyet Projesi
2019
İzmir, Türkiye
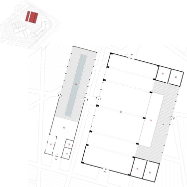
"Gemi Mühendisliği ve Yat Tasarım Akademisi" projesi, Gemi Mühendisi veya Yat Tasarımcısı olmak isteyen öğrencilere daha geniş, detaylı, yüksek teknolojiler ve yeni bir eğitim sistemi sunacak bir yer olacak. Bu enstitü, hem mühendislik hem de tasarım bölümleri için dersler, kurslar, atölyeler sunacak ve sağlayacak.












Can Apartmanı
Konut Projesi, Kentsel Dönüşüm
2021
İzmir, Türkiye
"Can Apartmanı" projesi, İzmir'in Karşıyaka ilçesinin Bostanlı Mahallesi'nde inşa edilecektir. Bu bir kentsel dönüşüm projesidir. Bina, çatı katı dahil olmak üzere Zemin K.+7 katlıdır. Zemin kat, dükkan mahallerine için ayrılmıştır ve diğer katlar konutlar içindir.
Projenin mimari ruhsat çizimleri ve 3D görselleştirmeleri tarafımca yapılmış olup, yapının tasarımı ve müteahhitliği Kare Mimarlık firmasına aittir.










Ünal Apartmanı
Konut Projesi, Kentsel Dönüşüm
2020
İzmir, Türkiye
"Ünal Apartmanı" projesi, İzmir'in Konak ilçesinin Mimar Sinan Mahallesi'nde inşa edilmiştir. Bu bir kentsel dönüşüm projesidir. Bina, çatı katı dahil olmak üzere Zemin K.+8 katlıdır. Zemin kat beş adet dükkan/iş yeri bulunurken, kalan katlar konutlar için ayrılmıştır.
Projenin mimari ruhsat çizimleri ve 3D görselleştirmeleri tarafımca yapılmış olup, yapının tasarımı ve müteahhitliği Kare Mimarlık firmasına aittir.












Kuşçular Projesi
A Tipi Villa
Konut Projesi, Kentsel Dönüşüm
2020
İzmir, Türkiye
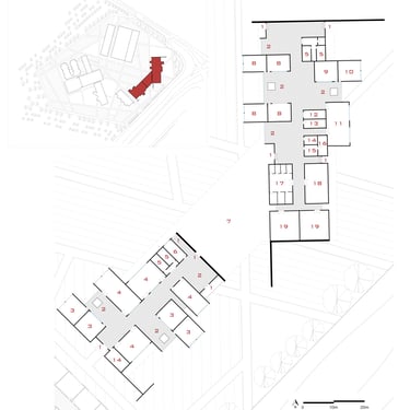
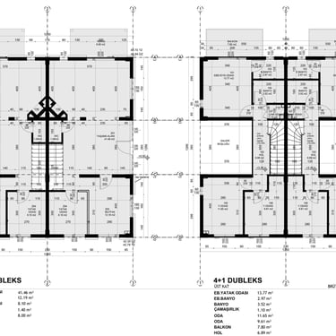
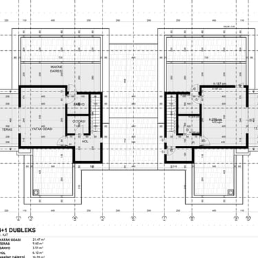
"Kuşçular Konut Projesi" Urla/İzmir'in Kuşçular Mahallesi'nde inşa edilmiştir. Projede her biri 2 katlı olan 15 adet ikiz villa bulunmaktadır. Projede iki farklı tipte ev bulunmaktadır ve hepsi aynı geniş araziye yerleştirilmiştir.
Projenin mimari ruhsat çizimleri ve 3D görselleştirmeleri tarafımca yapılmış olup, yapının tasarımı ve müteahhitliği Kare Mimarlık firmasına aittir.














Kuşçular Projesi
B Tipi Villa
Konut Projesi, Kentsel Dönüşüm
2020
İzmir, Türkiye
"Kuşçular Konut Projesi" Urla/İzmir'in Kuşçular Mahallesi'nde inşa edilmiştir. Projede her biri 2 katlı olan 15 adet ikiz villa bulunmaktadır. Projede iki farklı tipte ev bulunmaktadır ve hepsi aynı geniş araziye yerleştirilmiştir.
Projenin mimari ruhsat çizimleri ve 3D görselleştirmeleri tarafımca yapılmış olup, yapının tasarımı ve müteahhitliği Kare Mimarlık firmasına aittir.
















Yalı Apartmanı
Konut Projesi
2022
İzmir, Türkiye
"Yalı Apartmanı" projesi, İzmir'in Karşıyaka ilçesinde yer almakta olan bir konut projesidir. Bina, çatı katı dahil olmak üzere Zemin Kat+9 katlıdır. Tüm katlar konut kullanımı içindir.
Projenin yalnızca 3D görselleştirmeleri tarafımca yapılmış olup, yapının tasarımı Kare Mimarlık firmasına aittir.








